Villas Don Pedro 2
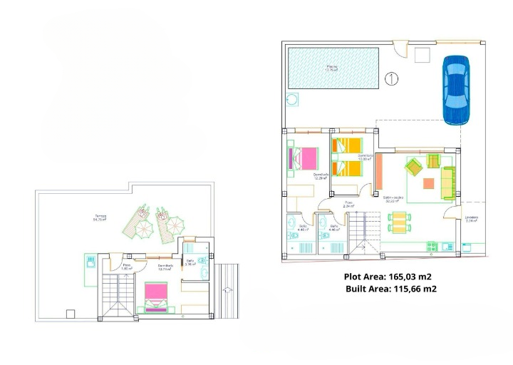
VILLAS DON PEDRO 2 is designed with 4 villas with 3 bedrooms and 3 fitted bathrooms, with two bedrooms on the ground level including private swimming pool and there is a large solarium – terrace on the first floor, to enjoy the sun every day of the year . Designed with a contemporary style and open plan concept, it comprises a fully fitted kitchen and lounge-dining room.
The properties are located in San Pedro del Pinatar (Murcia), just a few minutes from the beach and surrounded by all services, parks, sports facilities and several Golf Courses.
VILLAS DON PEDRO 2 will meet the highest standards and will be equipped with:
- High-performance acoustic insulation on roof and walls, as well as watertight joinery and acoustic insulating enclosure elements.
- Exterior carpentry in gray aluminum with thermal break, double-glazed and laminated glass in windows down to the floor for optimum solar protection. Sliding windows in dining room and bedrooms; tilt and turn windows in bathrooms (frosted glass).
- Stoneware flooring throughout the house with 60×60 format, including terraces. Different formats and choices. Bathrooms tiled in white with choice for shower area. Bathroom vanity unit, mirror and light above the washbasin included.
- Appliances included: Fridge-freezer, hob, oven and microwave, extractor hood and integrated dishwasher.
- Lighting included inside and outside the house. Except for decorative lamps in bedrooms and over the kitchen table.
- Private pool with 2 interior lights, switch in dining room and solar shower.
- Pre-installation of ducted air conditioning in living room and bedrooms.
- Pedestrian door with video intercom and motorized vehicle sliding door.
- Reinforced security door in white.
Please contact us for further information, current availability or to arrange a viewing.
Villa Prices:- Completion December 2025
3 bedrooms / 3 bathrooms – €349,900
Contact us for the latest availability + detailed floor plans
All prices exclude VAT and taxes.
Villas Don Pedro 2















You must be logged in to post a comment.