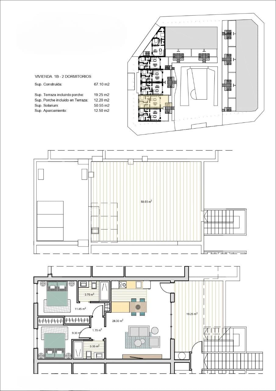
Rainbow Your Place Bungalow
Please contact us for further information, current availability or to arrange a viewing.
Bungalow Prices:- Completion September 2026
3 bedroom / 2 bathroom – 233,00 to 253,00€
2 bedroom / 2 bathroom – 238,000 to 243,000€
All prices exclude IVA and taxes.
Brochure – Rainbow Your Place Bungalows























You must be logged in to post a comment.